ブログ

【京阪中書島駅徒歩7分の土地の販売を開始しました】
 京都 伏見 葭島矢倉町 建築条件付き売土地


中書島駅徒歩7分の便利な立地で、


新築用地を販売しています。


歴史ある酒蔵や伏見十石舟のすぐそば。 


春には桜、夏には紫陽花や柳を 眺めながら川辺を散策。


季節の移ろいを感じる暮らし。

物件情報


【土地面積】  ( 公簿面積 )90.81 ㎡ 


【セットバック】 約 1.8 ㎡ 


【接道状況】 東側 約3.7Mの公道に約6M接道


【用途地域】 第一種住居地域 


【建蔽率】 60% 【容積率】 160% 


【引渡し時期】令和6年 12 月以降 

【取引形態】 売主


【その他の条件】建築条件付き ※契約後3ヶ 月以内に新築工事請負契約を締結いただきます。


建物の 引渡しは着工後6ヶ月以内です。


※土地は未測量の為、 測量の結果、面積が変わる可能性があります。 


 

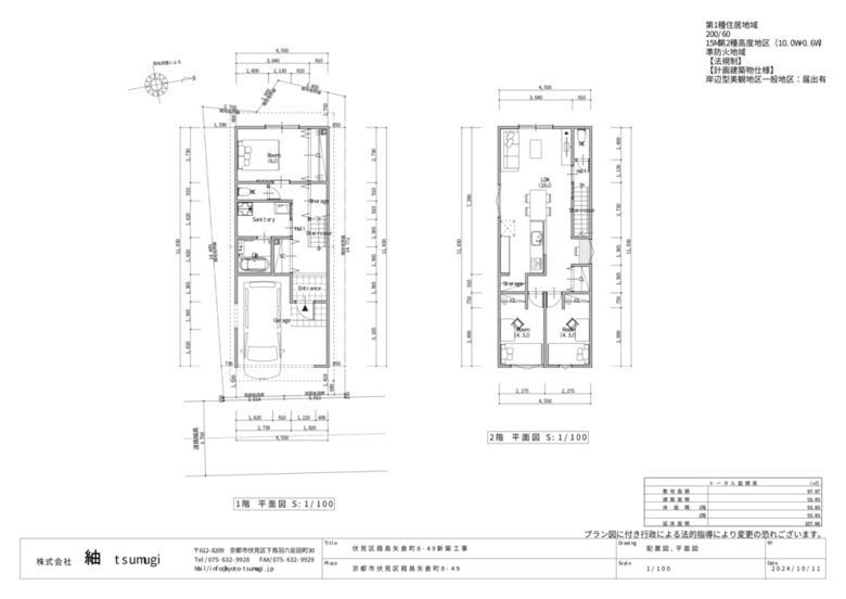
建物プラン


アンティークの似合うベーシックで落ち着ける空間を、新築で。

永く愛せるシンプルデザイン

人が主役の 心地よい時間が流れる家。

【建物プラン】

木造2階建て 

3LDK 


1階 55 ㎡ 2 階 55 ㎡ 合計 110 ㎡ 約32 坪(インナーガレージ含む) 


建物価格 2100 万円 


外構費用 60 万円 


設計・建確費用 100 万円


 


〈仕様〉 


省エネ住宅 床暖房 浴室乾燥機 ペアガラス 乾太くん

建物仕様



周辺環境

京阪「中書島」駅  徒歩7分

近鉄「桃山御陵」駅 徒歩 10 分

京都市立南浜小学校 徒歩4分

京都市立桃陵中学校 徒歩6分